Hutterer&Lechner
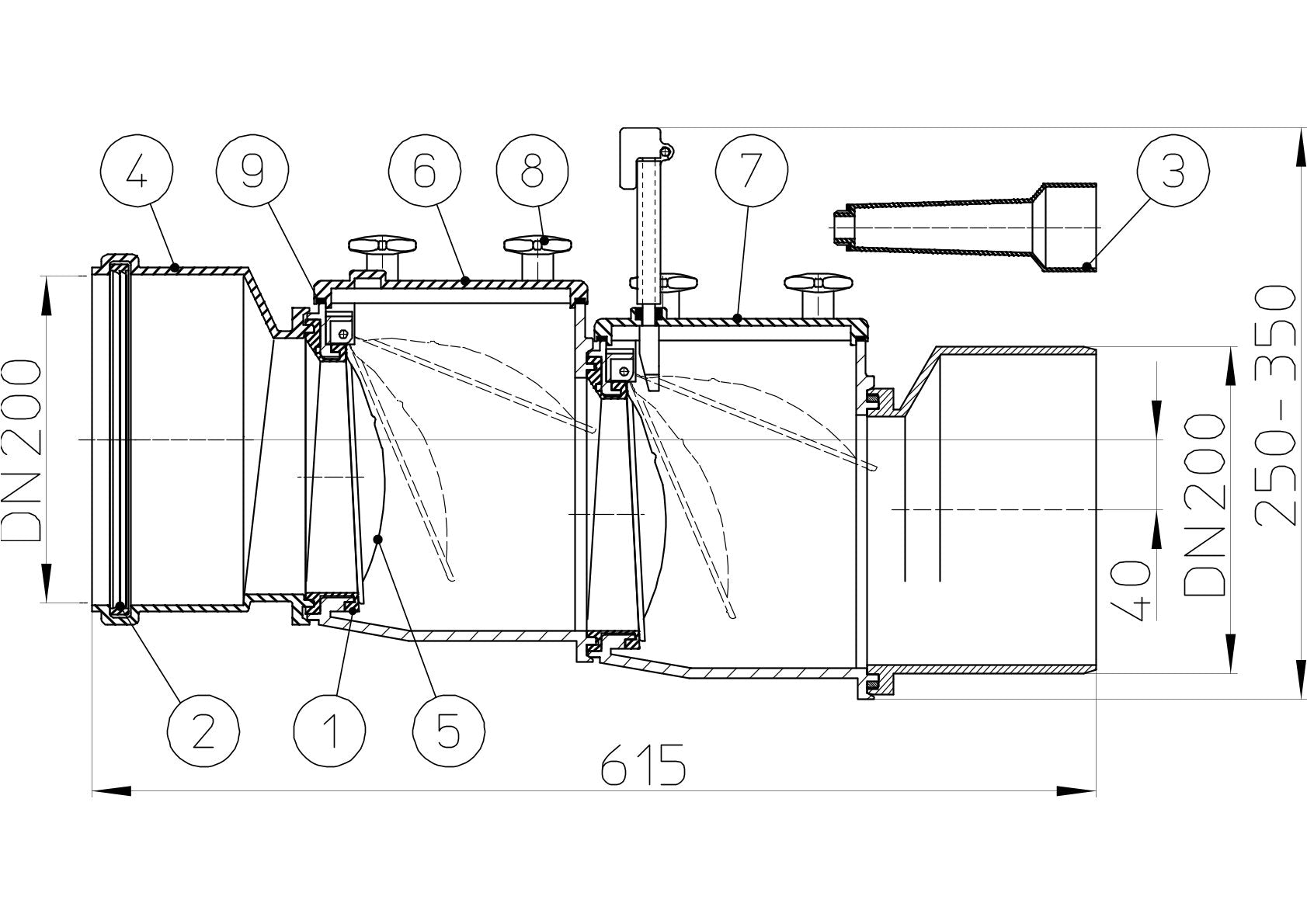
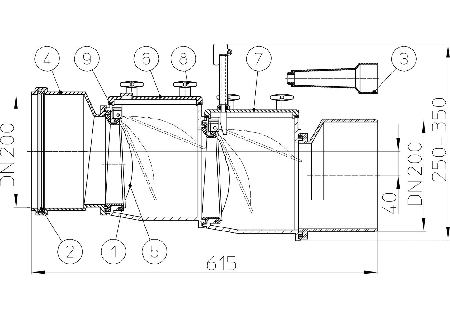
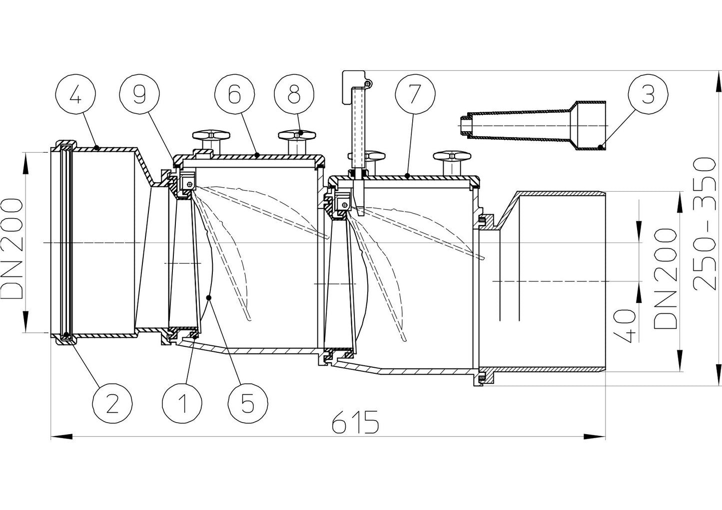
HL Rückstauklappe mit 2 Edelstahlklappen, Handabsperrung
HL Rückstauklappe mit 2 Edelstahlklappen, Handabsperrung
Verfügbarkeit für Abholungen konnte nicht geladen werden
HL Rückstauverschlüsse (Serie 710.2 bis 720.2) – Höchster Schutz bei Rückstau
Schützen Sie Ihre Immobilie effektiv vor kostspieligen Wasserschäden. Die Rückstauautomaten der Marke Hutterer & Lechner (HL) garantieren eine zuverlässige Gebäudeentwässerung auf dem neuesten Stand der Technik. Speziell entwickelt für fäkalienhaltiges Abwasser (Typ 3), bietet diese Serie durch ihr Doppelklappen-System aus Edelstahl ein Maximum an Ausfallsicherheit.
Technische Highlights im Detail
-
Doppelte Barriere: Zwei vollautomatische Edelstahl-Pendelklappen verhindern zuverlässig das Eindringen von Wasser aus dem Kanalnetz.
-
Notfall-Kontrolle: Eine integrierte Handabsperrung ermöglicht die manuelle Verriegelung der Leitung bei Wartungsarbeiten oder im Ernstfall.
-
Wartungskomfort: Die großdimensionierte Reinigungsöffnung erlaubt einen barrierefreien Zugang für Inspektionen und Reinigungsarbeiten.
-
Materialgüte: Hochfester Spezialkunststoff sorgt für chemische Beständigkeit und eine extrem lange Lebensdauer.
-
Normkonformität: Volle Entsprechung der DIN EN 13564 – Typ 3, zertifiziert für fäkalienhaltiges Abwasser.
Verfügbare Varianten & Dimensionen
| Modell | Nennweite | Artikelnummer |
| HL 710.2 | DN 110 | 710.2 |
| HL 712.2 | DN 125 | 712.2 |
| HL 715.2 | DN 160 | 715.2 |
| HL 720.2 | DN 200 | 720.2 |
Warum Sie sich für HL Rückstauverschlüsse entscheiden sollten:
-
Maximale Sicherheit: Doppelte Absicherung durch zwei unabhängige Edelstahlklappen.
-
Universelle Montage: Dank waagrechtem Abgang problemlos in bestehende Rohrleitungen integrierbar.
-
Vielseitige Anwendung: Ideal für Kellerabläufe, Waschküchen und zentrale Hausanschlüsse in rückstaugefährdeten Zonen.
-
Robust & Langlebig: Hohe Widerstandsfähigkeit gegen mechanische Belastungen.
Einsatzgebiete: Ob im privaten Hausbau oder bei gewerblichen Entwässerungssystemen – überall dort, wo fäkalienhaltiges Abwasser sicher abgeleitet und Rückstau verhindert werden muss, ist die HL-Serie die professionelle Wahl.
Share

Hier finden Sie unsere Kanalrohre & Formstücke
-
KG2000 PP Rohr SN10 DN 110
Normaler Preis Von €6,95 EURNormaler PreisGrundpreis / proVerkaufspreis Von €6,95 EUR -
KG2000 PP Rohr DN 125 SN10
Normaler Preis Von €8,65 EURNormaler PreisGrundpreis / proVerkaufspreis Von €8,65 EUR -
KG2000 Rohr DN 160 SN10
Normaler Preis Von €9,88 EURNormaler PreisGrundpreis / proVerkaufspreis Von €9,88 EUR -
KG2000 Rohr DN 200 SN10
Normaler Preis Von €19,90 EURNormaler PreisGrundpreis / proVerkaufspreis Von €19,90 EUR